Weiss Architecture Studio

Quis autem vel eum iure reprehenderit qui in ea voluptate velit esse quam nihil molestiae lorem.

Portfolio

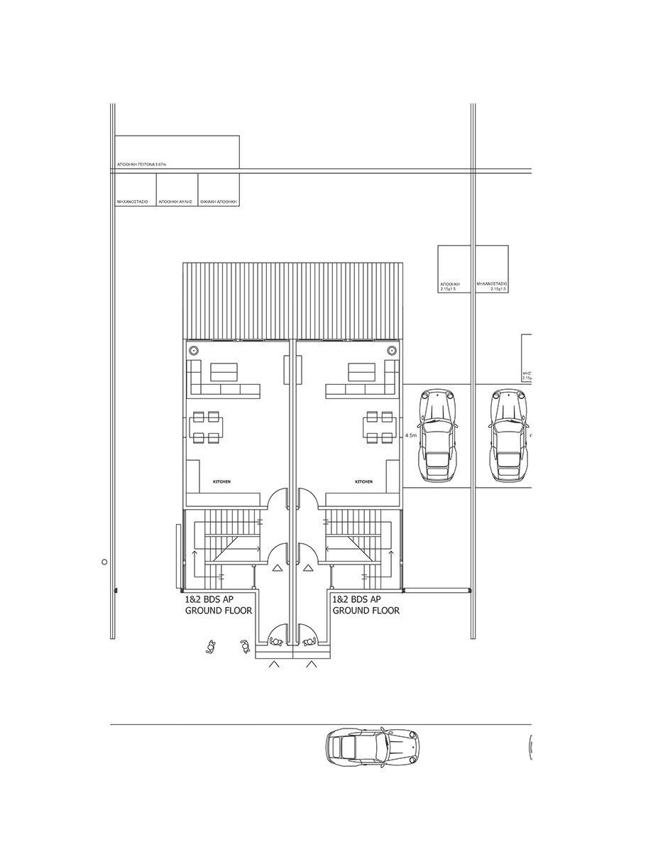
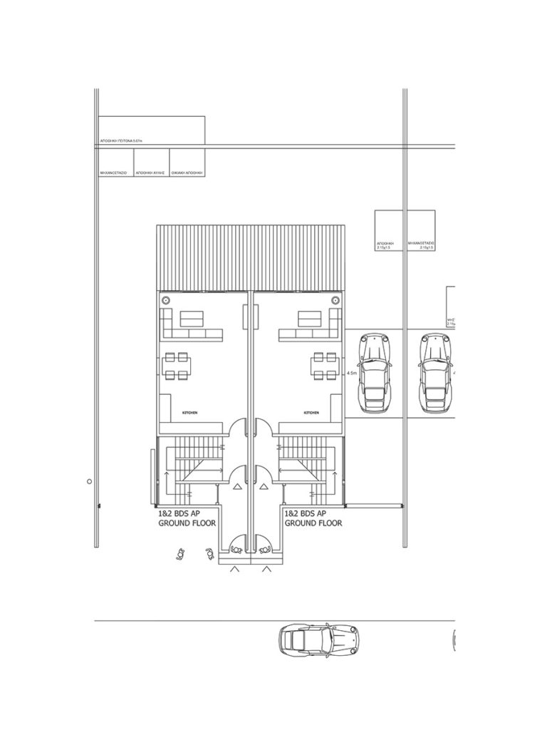
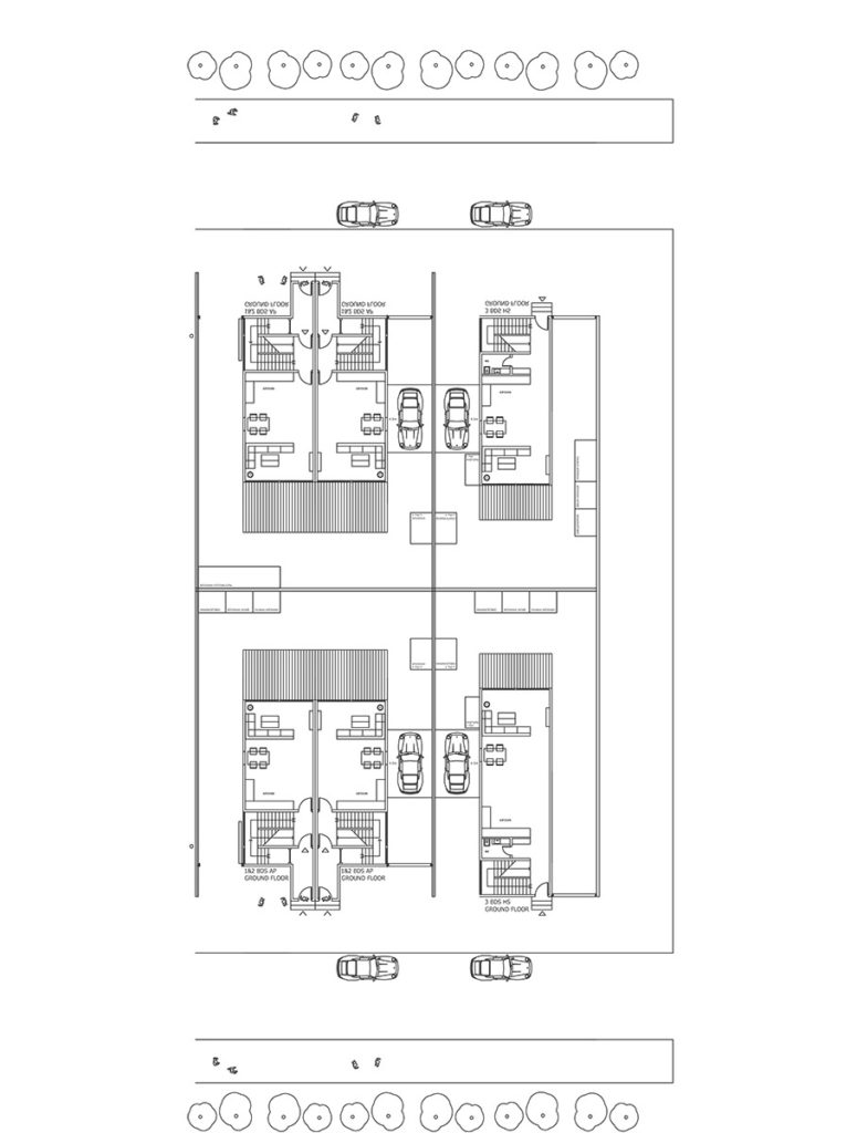
Housing – Plymouth UK

Housing – Plymouth UK

PLANS

Date: