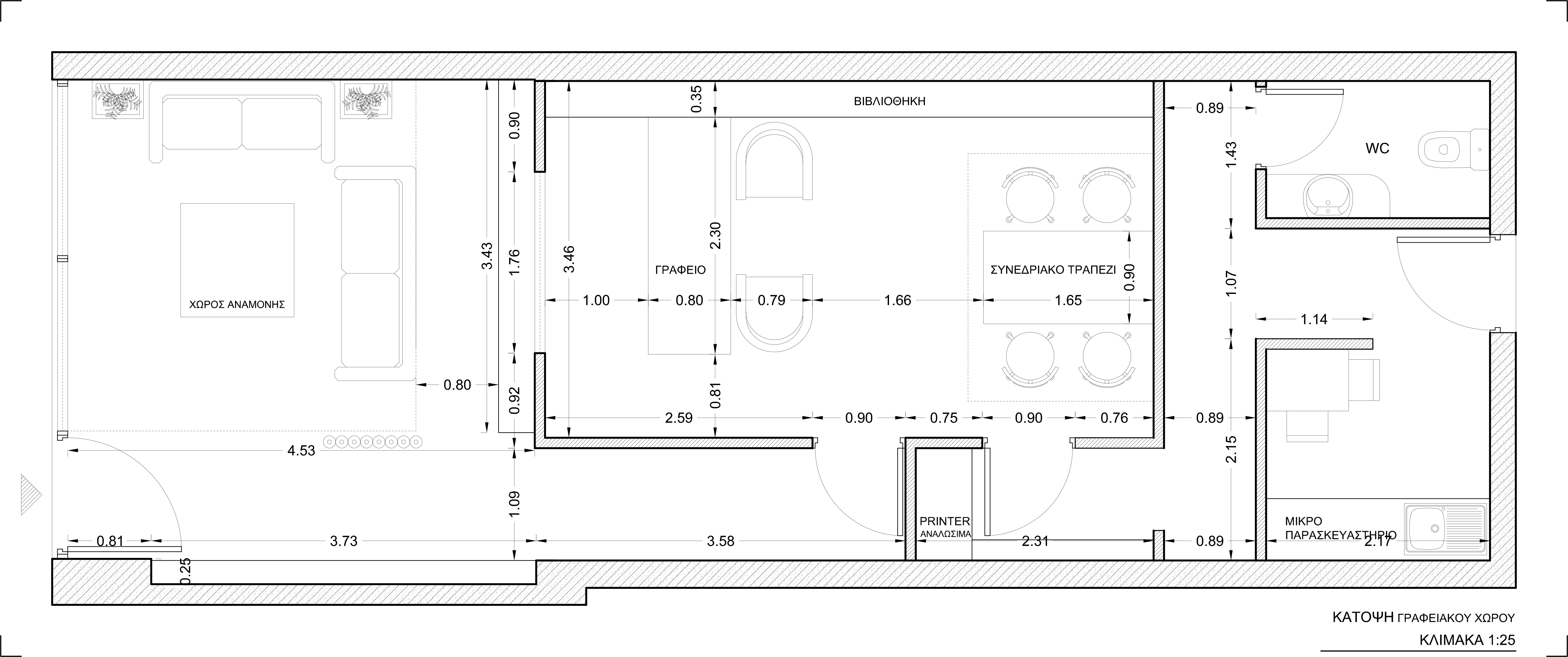
Η κεντρική ιδέα σύνθεσης του δικηγορικού γραφείου, είναι επηρεασμένη από την απαρχή του όρου δικαιοσύνη, για αυτό το λόγο έγινε αναστροφή στο παρελθόν και βρεθήκαμε στην αρχαία Ελλάδα όπου και βρίσκεται η αρχή του.
Οι αρχαίοι Έλληνες έτρεφαν μεγάλη εκτίμηση στη Θεά της Δικαιοσύνης. Από αυτήν εξαρτιόταν η ισορροπία του κόσμου και η τάξη των πραγμάτων. Της είχαν δώσει το όνομα Θέμις, που σήμαινε αυτό που ισχύει, καθώς ο λόγος της ήταν σεβαστός από θεούς και ανθρώπους.
Η Θέμις αντιπροσώπευε το δίκαιο και τιμωρούσε όποιον διέπραττε αδικίες και παρέμβαινε τους κανόνες δικαίου.
Σύμφωνα με τη μυθολογία, η Θέμις άνηκε στο γένος των Τιτάνων. Πατέρας της ήταν ο Ουρανός και μητέρα της η Γαία.



