Weiss Architecture Studio

Quis autem vel eum iure reprehenderit qui in ea voluptate velit esse quam nihil molestiae lorem.

Portfolio

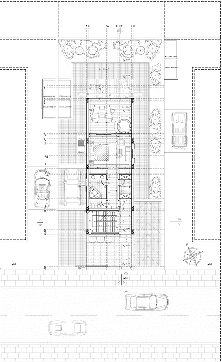
Modern Villa in Cyprus

IN PROGRESS

Date: