Είναι πολύ σημαντικό όταν άνθρωποι σου εμπιστεύονται το “όνειρό” τους.
Το θέλω της Πέννυς και του Αλέξη ήταν να φτιάξουν ένα φαρμακείο στη Λέρο, το οποίο να είναι φιλόξενο, διαφορετικό από τα φαρμακεία που έχουμε συνηθίσει, και αυτό με βρήκε απόλυτα σύμφωνο καθώς μου αρέσουν οι προκλήσεις και η σύνθεση έργων “έξω από το κουτί”.
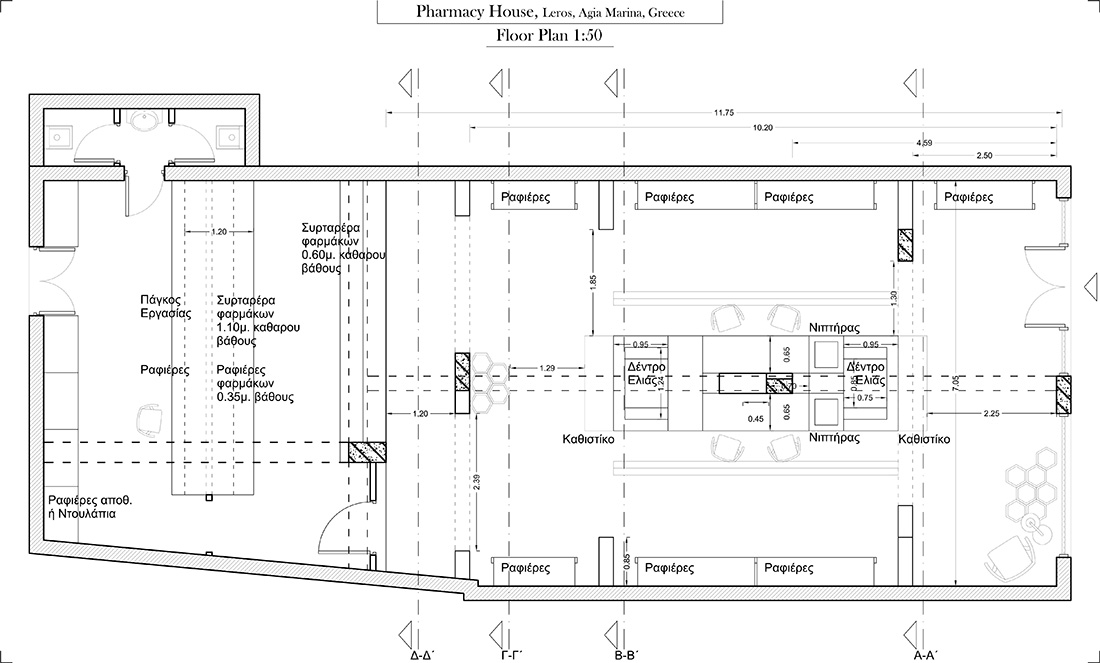
Ο χώρος φτιάχτηκε στην Αγιά Μαρίνα, Λέρου έναν πανέμορφο παραδοσιακό οικισμό. Θυμάμαι χαρακτηριστικά τους ιδιοκτήτες να μου λένε θέλουμε να μας φτιάξεις ένα χώρο που ο επισκέπτης να νιώθει πολύ οικεία όταν θα τον επισκέπτεται. Αυτά τα δυο σε συνάθροιση με το ότι ήθελα να πάρω σαν στοιχείο τη φυση με τα φαρμακευτικά προϊόντα της και να επηρεαστώ από αυτη, απέδωσε το αποτέλεσμα του τελικού χώρου.



