Μια μελέτη για την περιοχή των Αλίντων της Λέρου. Βρίσκεται μέσα σε ένα κτήμα γεμάτο από δέντρα και ένα επιβλητικό νεοκλασικό κτίριο δίνοντας σου την αίσθηση της απομόνωσης από το υπόλοιπο νησί. Η θάλασσα βρίσκεται μόλις 3 λεπτά περπατώντας, κάνοντας ένα συνδυασμό μοναδικό μεταξύ γης και φύσης (αγρόκτημα) και θάλασσας.
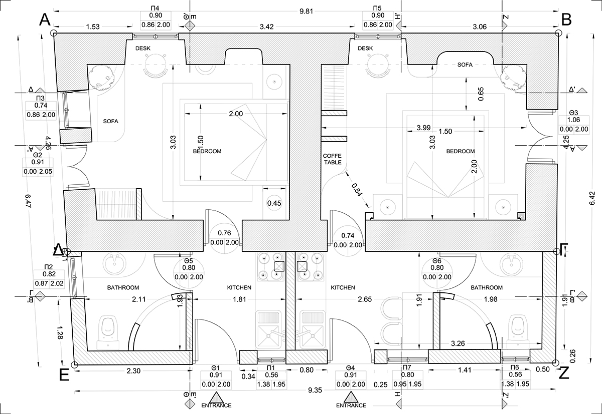
Η μελέτη αφορά την αρχή της δημιουργίας μιας μονάδας αγροτουρισμού. Η εκκίνηση πραγματοποιείται με τα πρώτα δυο δωμάτια που θα βρίσκονται σε ένα πετρόχτιστος μικρό κτίσμα που φτιάχτηκε σαν ανεξάρτητος βοηθητικός χορός του κυρίως νεοκλασικού κτίσματος, το οποίο εν συνεχεία και δέχτηκε επέκταση.
Στόχος ήταν αφενός να αναδειχθεί μέρος του παραδοσιακού χαρακτήρα της Λέρου, και αφετέρου να συνδυαστεί με το φυσικό στοιχείο όσο το δυνατόν περισσότερο. Το κάθε δωμάτιο είναι της τάξεως των 18 τετ. μέτρων και περιλαμβάνει κουζίνα μπάνιο και το δωμάτιο με το διπλό κρεβάτι, αποθηκευτικούς χώρους, καθιστικό καθώς και γραφείο.















