Weiss Architecture Studio

Quis autem vel eum iure reprehenderit qui in ea voluptate velit esse quam nihil molestiae lorem.

Portfolio

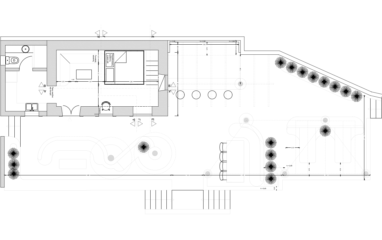
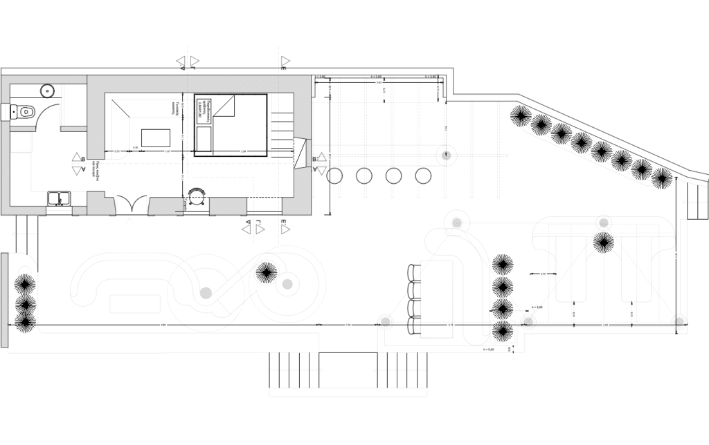
Traditional Small House – “Katoikia” – AirBnB